Espace propriétaire
fr
Se connecter
Se connecter

Votre recherche

Exclusivité
Prix en baisse
Le Blanc-Mesnil (93150)

8 pièces - 197 m²

EXCLUSIVITÉ - UN BIEN RARE et UNIQUE Maison 8 pièces de 197m2 Centre-ville du Blanc-Mesnil

629 000 €
Ref : 6842
Découvrir le bien

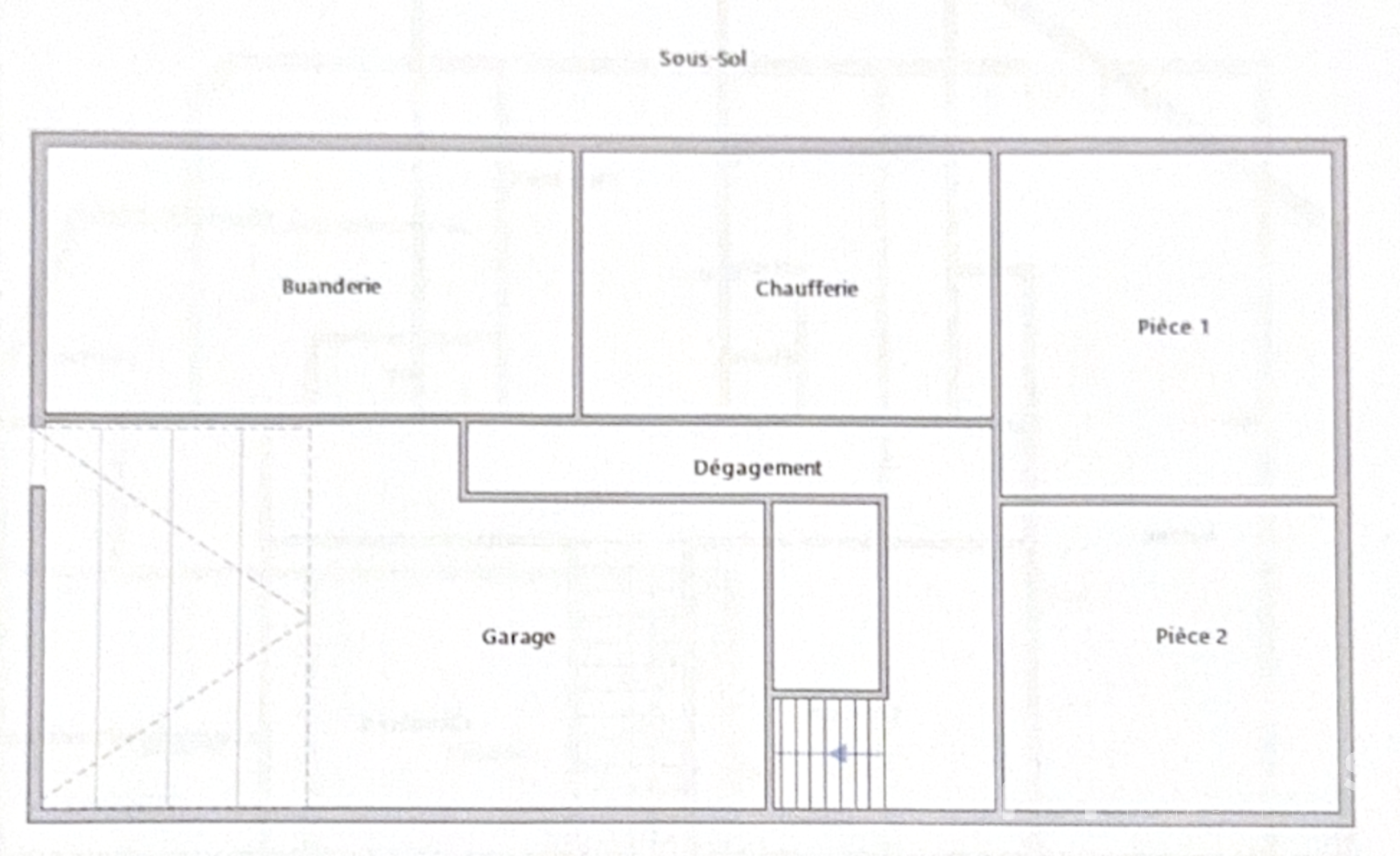
Marine ORTUNO vous propose en EXCLUSIVITE cette grande maison de style chaumière indépendante de 197 m², comprenant 8 pièces, édifiée sur un terrain de 435 m². Elle bénéficie d’un emplacement idéal en plein cœur du Blanc-Mesnil, à proximité immédiate des commerces, écoles et transports. Au rez-de-chaussée, vous trouverez une entrée desservant directement l’étage, un grand séjour lumineux de 36 m² ouvrant sur une terrasse, une cuisine indépendante, deux chambres, une salle de bains avec WC ainsi qu’un WC séparé. Le premier étage offre un bel espace nuit avec quatre chambres, un bureau, une salle de bains et un WC séparé. Les combles sont aménageables. Un sous-sol total vient compléter ce bien, comprenant un grand garage, une buanderie, une chaufferie et deux pièces polyvalentes idéales pour du stockage, un atelier ou un espace loisirs. Côté exterieur une terrasse en marbre blanc avec possibilité de transformation en jardin. Un bien UNIQUE et RARE sur le secteur, combinant volume, luminosité et localisation privilégiée au cœur du Blanc-Mesnil. Des travaux de rafraîchissement sont à prévoir, la maison est habitable en l’état. Transports : à seulement 15 minutes à pied de la gare de Drancy, puis 15 minutes de trajet jusqu’à la Gare du Nord plusieurs lignes de bus accessibles à proximité. Le secteur bénéficiera prochainement de l'arrivée des lignes 16 et 17 du Grand Paris Express. DPE : D

Pour plus d'informations ou pour organiser une visite, contactez Marine ORTUNO dès maintenant au 06.24.42.40.70.

Annonce proposée par un agent commercial

TRAD_ZEPHYR_Caracteristique TRAD_ZEPHYR_Valeurs
Code postal 93150
surface terrain 435 m²
Nombre de chambre(s) 7
Nombre de pièces 8
Nombre de niveaux 4
TRAD_ZEPHYR_Caracteristique TRAD_ZEPHYR_Valeurs
Nb de salle de bains 2
Cuisine Séparée
Mode de chauffage Gaz
Type de chauffage TRAD_TYPE_CHAUFF_CHAUDIERE
Format de chauffage Individuel
Nombre de garage 1
Année de construction 1972
TRAD_ZEPHYR_Caracteristique TRAD_ZEPHYR_Valeurs
Copropriété NON
TRAD_ZEPHYR_Caracteristique TRAD_ZEPHYR_Valeurs
Prix de vente honoraires TTC inclus 629 000 €
Rez de chaussée
chambre 10.02 m²

salon/sejour 36 m²

cuisine 11.68 m²

chambre 9.62 m²

cellier 11.52 m²

salle de bain 6.49 m²

WC 2.09 m²

PLACARDS 5.37 m²

entrée 5.41 m²

annexe 10.74 m²

Etage 1
chambre 16 m²

chambre 12.43 m²

chambre 10.59 m²

chambre 19 m²

salle de bain 6.54 m²

WC 1.44 m²

cellier 12.75 m²

PLACARDS 5 m²

DPE GES
Contacter pour ce bien
L'agent
ORTUNO Marine
Téléphone 06 24 42 40 70

* Champ obligatoire

Les informations recueillies sur ce formulaire sont enregistrées dans un fichier informatisé par La Boite Immo agissant comme Sous-traitant du traitement pour la gestion de la clientèle/prospects de l'Agence / du Réseau qui reste Responsable du Traitement de vos Données personnelles. La base légale du traitement repose sur l'intérêt légitime de l'Agence / du Réseau. Elles sont conservées jusqu'à demande de suppression et sont destinées à l'Agence / au Réseau. Conformément à la loi « informatique et libertés », vous disposez des droits d’accès, de rectification, d’effacement, d’opposition, de limitation et de portabilité de vos données. Vous pouvez retirer votre consentement à tout moment en contactant directement l’Agence / Le Réseau. Consultez le site https://cnil.fr/fr pour plus d’informations sur vos droits. Si vous estimez, après avoir contacté l'Agence / le Réseau, que vos droits « Informatique et Libertés » ne sont pas respectés, vous pouvez adresser une réclamation à la CNIL. Nous vous informons de l’existence de la liste d'opposition au démarchage téléphonique « Bloctel », sur laquelle vous pouvez vous inscrire ici : https://www.bloctel.gouv.fr Dans le cadre de la protection des Données personnelles, nous vous invitons à ne pas inscrire de Données sensibles dans le champ de saisie libre.
Ce site est protégé par reCAPTCHA, les Politiques de Confidentialité et les Conditions d'Utilisation de Google s'appliquent.

Découvrir nos outils